Kazánok /  Hőszivattyúk /  HMV Hőszivattyúk /  VAILLANT aroSTOR VWL BM 270/5
VAILLANT aroSTOR VWL BM 270/5
Egyfázisú hálózatra köthető
Szolár rendszerekkel kombinálható
Magas hatásfokkal üzemeltethető
Monoblokk kivitelű HMV hőszivattyú
Csőspirállal rendelkezik
Tároló űrtartalma: 270L
Cikkszám: VAIL-0010026819
* az árak bruttó árak! (az ÁFA-t tartalmazzák)
Az új, nagyhatékonyságú aroSTOR meleg víz hőszivattyú egy többféle módon felhasználható megoldás családi házakban a környezetbarát HMV készítéshez, függetlenül attól, hogy új építésről vagy felújításról beszélünk.
A halk üzemű meleg vizes hőszivattyút elsősorban ott javasoljuk, ahol az üzemeltető napelemes rendszert használ, ugyanis a megtermelt fotovoltaikus áram egész évben hasznosítható: a napelemes berendezés energiamenedzserével az aroSTOR célirányosan kapcsolható be, amennyiben a napsütés elegendő energiát szolgáltat.
Levegő/víz hőszivattyúként az aroSTOR a melegvíz-készítéshez a felállítási hely vagy a külső környezet levegőjéből nyeri az energiát, egészen -7⁰C-ig. Ennek köszönhetően nyáron és télen egyaránt, természetes hőt használunk fel.
A hőszivattyú egy erre alkalmas helyiségben áll, így a lehűlt levegő speciális légcsatornán keresztül a szabadba vagy hűtési célra egy másik helyiségbe (pl.: tároló kamra) vezethető. Az aroSTOR meleg víz hőszivattyú rendkívül könnyen telepíthető: csak a megfelelő helyen kell felállítani, bedugni a konnektorba és kész!
- Környezetkímélő melegvíz-készítés, magas komfort, 60⁰C feletti HMV hőmérséklet
- Magas hatásfok, jelentős megtakarítás meglévő fűtési hőtermelővel kombinálva
- Ideális megoldás napelemes- vagy szolár rendszerekhez
- A hőszivattyúból kilépő hideg levegő hasznosítható helyiségek hűtésére
- Környezetbarát, mert a természetből származó hűtőközeget használ
- Csapolási profil:L
- HMV energiahatékonysági besorolás:A+
- 3+2év garancia a meghatározott feltételek teljesülése esetén
- Legionella baktérium elleni védelemmel ellátva
- A lehűlt levegőt opcionálisan átvezethető egy másik helyiségbe
- Egyfázisú hálózatra köthető
- Csőspirállal ellátott kivitel
A hőszivattyús melegvíztárolót dugóval és dokumentumokkal szállítjuk.
A megrendelés és a tényleges szállítás közötti gyártó által meghatározott áremelést sajnos nem tudjuk átvállalni még előleggel kifizetett termékek esetében sem! Amennyiben a termék árában lényeges változás történik, érkezéskor szállítás előtt felajánljuk a módosított árat, melyet lehetőség van elfogadni, vagy elállni a rendeléstől.

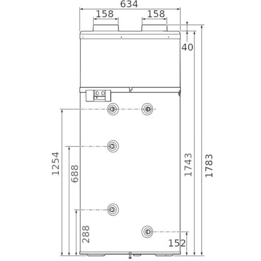
Műszaki adatok:
- Mélység:634mm
- Magasság:1748mm
- Szélesség:630mm
- Csatornaméret:160mm
- Tároló anyaga:nemesacél
- Hűtőközeg töltlet:0,15kg
- Hőforrás csatlakozó vezeték:20m
- Globális melegítési potenciál(GWP):3
- Elektromos kiegészítő fűtés hőterhelése:7Watt/cm2
- Hideg/meleg víz csatlakozás:R3/4 külső menetes hengeres
- Rásegítő fűtés elektromos teljesítménye:1,2kW
- Levegő be és kivezetés hossza:10m
- Névleges hőteljesítmény:55°C-on:700W
- Hőcseréő fűtőteljesítménye:20kW
- Max.levegőmennyiség:400m3/óra
- COP(A14/W55):3,58
- Co2 egyenérték:0,45kg
- COP(A7/W55):3,14
- Hűtőközeg:R290
- Elektromos védettség:IPX4
- Hőcserélő felülete:0,8m2
- Hőszigetelés PUR hab:50mm
- Maximális magasnyomás:1,5Mpa
- Maximális magasnyomás:2,5Mpa
- Elektromos kábel hossza:1,5m
(A termék mérete miatt a szállítási költség: 25 000 Ft)
|
|
-
Hőszivattyúk
A hőszivattyús fűtés sokkal hatékonyabb mint a tisztán elektromos fűtések , de jelentős megtakarítást érhetünk el a gázfűtéshez képest is.
A hőszivattyús készülékek hűtő-fűtő elven működnek és ez a legfontosabb különbség az elektromos fűtésekhez képest, annak ellenére hogy a hőszivattyút sokan az elektromos fűtésekhez sorolják.
A gázfűtés és az elektromos fűtések hatásfoka sosem lehet 100% feletti, hiszen a gázfűtésnél a gázban levő energia távozik az égéstermékkel. Az elektromos ellenállásokon alapuló megoldások már képesek a közel 100%-os hatásfokkal működni de nem képesek a befektetett energiánál több hőenergiát juttatni. A hőszivattyú viszont igen.
- A hőszivattyú működése
A hőszivattyú a felhasznált áramot nem arra fordítja hogy felmelegítse a levegőt, hanem ogy az egyik helyről egy általunk kiválasztott másik helyre szivattyúzza a hőenergiát. A hagyományos fűtési módokhoz képest hőszivattyúval és klímával harmad,-negyed annyival kevesebb energiát kell felhasználni.
Pl: 1m3 levegőt 1,2-1,3 KJ energiával lehet 1°C -kal felmelegíteni. Ha mi ezt az energiát nem elő akarjuk állítani, hanem át akarjuk szivattyúzni egyik helyről a másikra, akkor az 0,3-0,4 KJ energiába kerül jelenleg.
- A gáz felmelegszik mert a keringető gázt a kompresszor összenyomja.
- A felmegedett gáz átadjá a hőenegriát a víznek/levegőnek egy hőcserélőben
- A nagy nyomású gáz a hőcserélőben lehűl így lecsapodik, folyékonnyá válik
- A folyékony hűtőközeget elvezetik egy nyomáscsökkentőn így elveszíti a nyomás nagy részét ennek eredményeképpen lehűl.
- Egy hőcserélőbe bekerülve lehűti környezetét, felmelegszik illetve elpárolog az alacsony nyomású,hideg folyadék
- A hőszivattyú hatásfoka
A hőszivattyúknak a hatásfokát COP-ben, hűtésnél EER-ben adják meg.
COP:az az arányszám ami 1Kwh energia átszivattyúzásához szükséges.
Ez a szám nagyban függ az időjárástól ezért a SCOP, SEER a szezonális éves szinten mutatja meg.
Minél alacsonyabb a külső hőmérséklet és minél melegebb hőmérsékletű vizet szeretnénk előállítani annál jobban csökken a hőszivattyú hatékonysága

- Levegő-víz hőszivattyú rendszerek
A levegő víz hőszivattyúkat gyorsan és egyszerűen telepíthetőek hűtésre, fűtésre és melegvíz előállítására.
A levegő-víz hőszivattyú egy hőcserélőn keresztül a közvetítő közeget hűti vagy fűti nem közbetlenül a levegőt.
A levegő -víz hőszvattyúk ahogy a nevében is benne van az energia nagy részét a levegőből nyerik. A magas hőtartalmú levegőből nyeri ki az energiát.
- Monoblokkos levegő-víz hőszivattyú
A levegő-víz hőszivattyú lehet monoblokkos rendszerű, ahol a teljes rendszer egy berendezésbe kerül. Ez egy olyan egység, mely a külső levegőből kinyert hőt közvetlenül a keringtetett víznek adja át. A monoblokk rendszerú hőszivattyú egyblokkos rendszer amely azt jelenti a hőszivattyú minden alkatrésze a melegvíz-tárolón kívül egy külső hőszivattyú egységben található.A monboblokk rendszerre csatlakoztathatnak radiátorokat de akár padlófűtést is. A monoblokk hőszivattyús rendszereket hívhatjuk kompakt kültéri egységnek is hiszen nem az épületben helyezik el.
- Split (különválasztott) levegő-víz hőszivattyú
A SPLIT hőszivattyú a nevében szereplően egy osztott hőszivattyú, ahol a hőszivattyú rendszer áll egy kültéri és egy beltéri egységből, amelyet össze kell csöveznie az F-gáz vizsgás szakembernek , amely klímatechnikai csövezésben fog a hűtőközeg áramlani a két egység között, egy egész rendszert kiépítve
- Geotermikus hőszivattyú rendszerek
A geotermikus hőszivattyú a földből nyert hőenergiát hasznosítja. A talajszondák segítségével nyerik ki a földből ezt továbbítva a rendszerbe ahol fűtésre célra illetve melegvíz előállításra lehet használni.
A talajszonda (geotermikus hőszonda) egy függőlegesen a talajba telepített eszköz, amely 50-200 m mélyről szállítja a felszínre a földhőt.
Az adott talajszondás hőszivattyú rendszerhez szükséges talajszondák számát a talajminőség mellett a kinyerni kívánt hőenergia határozza meg.
A talajszondás hőszivattyú rendszer környezetbarát, hosszú távon költséghatékony megoldást kínál az energiafelhasználásban.
Méterenként kb. 50 W teljesítménnyel lehet számolni talajszerkezettől függően - természetesen magasabb bekerülési költségen
Mivel nyáron aktív vagy passzív módon helyiséghűtésre használhatók, a talajszondák különösen komfortosak.
- HMV hőszivattyú
A HMV hőszivattyú a melegvíz előállításra a kinti a hőt használja így rendkívül hatékony napkollektoros rendszerrel összekötve még kedvezőbb. A nyári, tavaszi időszakban a napenergia segítségével képes a használati melegvíz előállításra.
A HMV hőszivattyú nagy részében a levegőből vonja ki az energiát így kínál környezetbarát megoldást használóinak,kisebb százalékben az elektromos áramot használja működéséhez.






















.png)







.png)






