Kazánok /  Gázkazánok /  Kondenzációs /  Fűtő kazánok /  Immergas VICTRIX Pro V2 150
Immergas VICTRIX Pro V2 150
5 év teljes körű garancia
"EASY CASCADE" többkazános üzemmód
Beépített időjárásfüggő szabályozás
Szélesebb modulációs tartomány 10-100%
Névleges Fűtési teljesítmény 138,3 kW
"A" kat. 93% szezonális hatásfok
Rozsdamentes acél hőcserélő
Cikkszám: 3.033863
* az árak bruttó árak! (az ÁFA-t tartalmazzák)
Az Immergas Victrix Pro V2 150 fali kondenzációs fűtő gázkazán egy nagyteljesítményű, falra szerelhető berendezés, amely indirekt tároló csatlakoztatásával használati melegvíz előállítására is alkalmas. Jelentős teljesítménye és kaszkádba köthetősége miatt társasházak és ipari épületek fűtési megoldásaként különösen ajánlott.
A digitális kaszkád- és zónavezérlő, valamint a bővítőegységek segítségével akár 5 fűtési kör (1 direkt és maximum 4 keverőszelepes) hozható létre, továbbá egy indirekt HMV-tároló is vezérelhető. A kaszkádvezérlő akár 8 darab VICTRIX Pro V2 kazánt is képes léptetni folyamatos teljesítményszabályozás mellett. Három kaszkádegység összekapcsolásával pedig akár 15 fűtési kör és 3 HMV-tároló kezelése is megvalósítható. A kazán a fűtési rendszerhez hidraulikai váltón vagy hőcserélőn keresztül kapcsolódhat; a kazán védelme érdekében a hőcserélős leválasztás az előnyben részesített megoldás.
A készülék fűtőkörének hőcserélője rozsdamentes acélból készül. A teljesítmény a pillanatnyi igényeknek megfelelően 10–100% között modulálható. Az elektronikus lángmoduláció biztosítja az energiatakarékos működést és a magas komfortszintet, miközben pontosan szabályozza a fűtővíz és a használati melegvíz hőmérsékletét.
Használati melegvíz előállítására már az alapfelszereltség részeként képes, a csatlakoztatáshoz opcionálisan motoros váltószelep-készlet szükséges. A magyar nyelvű digitális kezelőfelület egyszerű kezelést tesz lehetővé: a gombokkal pontosan beállíthatók a hőfokok, a kijelző pedig piktogramok és kódok segítségével tájékoztat a működésről és az esetleges hibákról.
Az időjáráskövető szabályozás a külső hőmérséklet alapján állítja be a fűtővíz hőmérsékletét, ezzel energiát takarít meg és fokozza a kényelmet. Az elektronika kompatibilis 0–10V, Opentherm és Modbus kommunikációval.
A kondenzációs technológia a füstgázban rejlő vízgőz hőtartalmát is hasznosítja, így azonos teljesítményt kisebb gázfelhasználással biztosít. Ez nemcsak gazdaságosabb, hanem környezetkímélőbb működést is eredményez.
Akár 15 VICTRIX Pro V2 kazán is összeépíthető kaszkádba külön szabályozó nélkül, amely ilyenkor képes 1 direkt kör, 1 kevert kör és 1 HMV-kör vezérlésére. A berendezés IPX5D védettséggel rendelkezik, így páradús vagy fröccsenő vizes környezetben is biztonságosan működtethető.
Műszaki adatok:
Névleges hőterhelés: 141,0 kW
Minimális hőterhelés: 29,0 kW
Névleges (hasznos) hőteljesítmény: 138,3 kW
Minimális (hasznos) hőteljesítmény: 28,3 kW
Hatásfok (80/60 °C): 98,1 / 97,6 %
Hatásfok (50/30 °C): 106,3 / 108,1 %
Hatásfok (40/30 °C): 107,2 / 108,8 %
Fűtési előremenő hőmérséklet: 15–90 °C
Maximális kazánvíz hőmérséklet: 95 °C
Maximális nyomás: 6,0 bar
Szezonális hatásfok (ErP): 93 %
Elektromos teljesítmény: 580 W
Ventilátor teljesítmény: 247 W
Keringető szivattyú: 306,0 W
Elektromos védettség: IPX5D
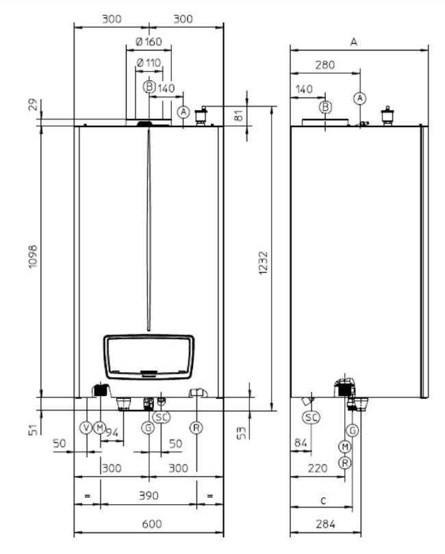
Füstgáz elvezetés / levegő bevezetés: Ø 110 / 160 mm
Tömeg víz nélkül: 112 kg
Tömeg vízzel töltve: 124,0 kg
Földgáz csatlakozási nyomás: 20 mbar
Földgázfogyasztás (min/max): 3,07 / 14,92 m³/h

A kép csupán illusztráció!
|
|






















.png)







.png)




