Kazánok /  Gázkazánok /  Kondenzációs /  Fűtő kazánok /  Immergas VICTRIX Pro V2 80
Immergas VICTRIX Pro V2 80
5 év teljes körű garancia
"EASY CASCADE" többkazános üzemmód
Beépített időjárásfüggő szabályozás
Szélesebb modulációs tartomány 10-100%
Névleges Fűtési teljesítmény 73,2 kW
"A" kat. 94% szezonális hatásfok
Rozsdamentes acél hőcserélő
Cikkszám: 3.033860
* az árak bruttó árak! (az ÁFA-t tartalmazzák)
Az Immergas Victrix Pro V2 80 egy nagyteljesítményű, falra szerelhető kondenzációs kazán, amely indirekt tároló csatlakoztatásával nemcsak fűtésre, hanem használati melegvíz előállítására is alkalmas. Magas teljesítménye és kaszkádba köthetősége miatt ideális választás társasházak, ipari és kereskedelmi épületek számára, ahol egyszerre fontos a megbízhatóság, a komfort és az energiahatékonyság.
A készülék kompatibilis az Immergas digitális kaszkád- és zónavezérlőivel, így akár 5 fűtési kör kialakítása is megvalósítható (1 direkt és legfeljebb 4 keverőszelepes kör). Emellett lehetőség van egy indirekt HMV-tároló vezérlésére is. Egy kaszkádvezérlő akár 8 Victrix Pro V2 kazánt képes összehangoltan működtetni, a folyamatos teljesítményszabályozásnak köszönhetően pedig mindig az aktuális igényekhez igazodik a rendszer. Több szabályozó egység összekapcsolásával összesen 15 fűtési kör és 3 HMV-tároló kezelhető.
A kazán védelme érdekében a fűtési rendszerhez való csatlakoztatás hidraulikai váltón vagy hőcserélőn keresztül javasolt. Ez biztosítja a kazánkör és a fűtési kör közötti eltérő tömegáram megfelelő kiegyensúlyozását.
A Victrix Pro V2 80 rozsdamentes acél hőcserélővel van felszerelve, amely hosszú élettartamot és hatékony működést garantál. Teljesítménye széles tartományban, 10–100% között modulálható, így mindig a pillanatnyi hőigénynek megfelelően üzemel. Az elektronikus lángmoduláció biztosítja a stabil hőmérsékletet, az energiatakarékos működést és a magas komfortérzetet.
Az indirekt HMV-tároló vezérlése alapfelszereltség, a csatlakoztatáshoz opcionálisan motoros váltószelep készlet érhető el. A kazán egyszerűen kezelhető a magyar nyelvű digitális kezelőfelületen, ahol a gombok segítségével könnyen beállíthatók a kívánt paraméterek, a kijelző pedig piktogramokkal és hibakódokkal tájékoztat az aktuális működésről.
Az időjárásfüggő szabályozás révén a készülék automatikusan a külső hőmérséklethez igazítja a fűtővíz hőmérsékletét, így nemcsak energiát takarít meg, hanem magasabb komfortot is biztosít. A kondenzációs technológia a füstgázban található rejtett hő (vízgőz) hasznosításával jelentősen csökkenti a gázfogyasztást, ezáltal környezetbarát üzemelést tesz lehetővé.
A készülék elektronikája képes fogadni 0–10V, Opentherm és Modbus jeleket, így könnyedén illeszthető korszerű épületfelügyeleti rendszerekhez. Továbbá, a Victrix Pro V2 sorozatból akár 15 kazán is kapcsolható kaszkádba külön szabályozó nélkül, ekkor a rendszer 1 direkt, 1 kevert és 1 melegvíz-kört tud irányítani.
Az IPX5D elektromos védettség gondoskodik a biztonságos működésről magas páratartalmú vagy fröccsenő vizes környezetben is.
Műszaki adatok:
Névleges hőterhelés: 75,0 kW
Minimális hőterhelés: 7,8 kW
Névleges (hasznos) hőteljesítmény: 73,2 kW
Minimális (hasznos) hőteljesítmény: 7,5 kW
Hatásfok (80/60 °C): 97,6 / 96,2 %
Hatásfok (50/30 °C): 105,9 / 106,6 %
Hatásfok (40/30 °C): 105,8 / 109,4 %
Fűtési előremenő hőmérséklet: 15–90 °C
Maximális kazánvíz hőmérséklet: 95 °C
Maximális nyomás: 4,4 bar
Szezonális hatásfok (ErP): 94 %
Elektromos teljesítmény: 320 W
Ventilátor teljesítmény: 120 W
Keringető szivattyú: 182,0 W
Elektromos védettség: IPX5D
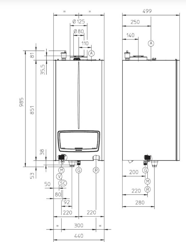
Füstgáz elvezetés / levegő bevezetés: Ø 80 / 125 mm
Tömeg víz nélkül: 61 kg
Tömeg vízzel töltve: 64,2 kg
Földgáz csatlakozási nyomás: 20 mbar
Földgázfogyasztás (min/max): 0,83 / 7,94 m³/h

A kép csupán illusztráció!
|
|






















.png)







.png)




