Kazánok /  Kiegészítők /  Szivattyúk /  Szennyvíz szivattyúk /  WILO HiSewlift 3-15
WILO HiSewlift 3-15
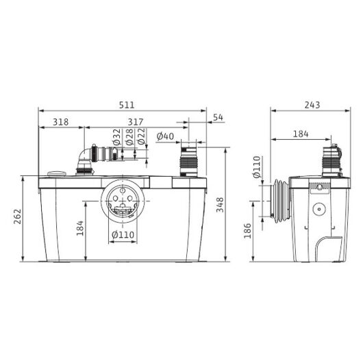
Kompakt szennyvíz-átemelő telep
Tartály bruttó térfogata: 14,4 liter
Rugalmas nyomócsonkkal
Cikkszám: WILO-4191675
* az árak bruttó árak! (az ÁFA-t tartalmazzák)
A WILO HiSewlift szennyezettvíz átemelő telep hátsó kifolyású WC-csészékhez, szerelőfal mögé történő beépítésre alkalmas. Olyan fekáliát tartalmazó szennyvíz szállítását végzi, amely nem vezethető be természetes esés révén közvetlenül a szennyvízcsatornába.
Jellemzői:
- Kompakt szennyvíz-átemelő telep, vágószerkezettel
- WC-hez, illetve egyéb vízelvezetőberendezéshez csatlakoztatható
- Pneumatikus nyomásfelvevővel való szintellenőrzéssel
- Rögzítőanyaggal és aktívszén-szűrővel kapható
- Csatlakoztatásra kész állapotban szállítjuk
- Beépített visszafolyásgátlókkal szerelve
- Csekély villamos energia fogyasztással
- Zajtalan üzemelést garantál
- Egy csatlakozással ellátva
- Termikus motorvédelemmel
- Rugalmas nyomócsonkkal
- Földelt villásdugóval
- Hosszú élettartam
- Kiváló minőség
- 5 év garancia, gyártói beüzemelés és karbantartás esetén
Műszaki jellemzői:
- Tartály anyaga: PP
- Tömítés anyaga: EPDM
- Hozzáfolyás csonk: DN 40
- Csatlakozókábel hossza: 1,5 m
- Tartály bruttó térfogata: 14,4 liter
- Kapcsolási térfogat: 1 liter
- Szivattyúház anyaga: PPGF30
- Szivattyúház anyaga: PPGF30
- Motorház anyaga: PPGF30

A kép csupán illusztráció!
|
|






















.png)







.png)




